Room for rent:
no longer available
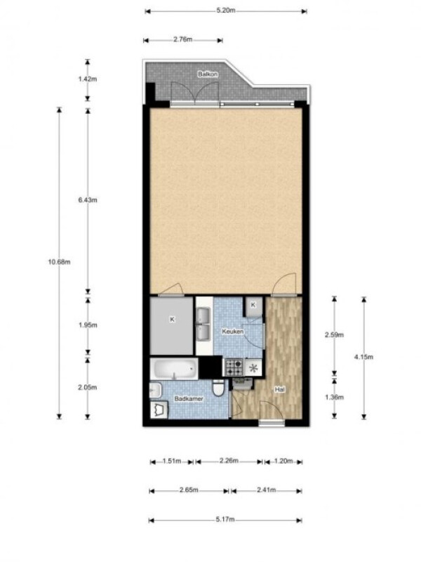
Boslaan in Den Haag
31 m2
1 room
?
Starting date
∞
Indefinite period
On this page you will find all information of this Room in Den Haag. You can contact the advertiser if you have any questions.
Bemiddelingskosten Nee Object Direct bij de eigenaar Borg 765 Garantiestelling Mogelijk Huurtoeslag Niet mogelijk Inkomen eis 2,8 X Maandhuur Bruto Huurtermijn Onbepaalde termijn Oplevering Kaal
We send your personal message to the landlord, along with all extra information included in your profile. This means the landlord knows who you are and there is more chance of you being selected.
What does it mean to respond?
With a free response, we only send your email address to the landlord. The chances of getting an answer are far smaller compared to a personal response.